Nyitólap Hirdetésfeladás Kapcsolat

Ingatlan hirdetések kizárólag ellenőrzött forrásból
Eladó Téglalakás, Szigetszentmiklós, Dunapart
#107004189
64.12 millió Ft
Alapterület 53 m2
Szobák száma 2 szoba
Építési mód Tégla
Állapot Új építésű
Emelet nincs megadva

További paraméterek

  • Jó közlekedéssel
  • Kertkapcsolatos
  • Kilátás: Kertre néző
  • Fűtés: Házközponti egyedi méréssel
  • Szintek száma: 1
  • Komfort: Dupla komfort
  • Internet: Optikai

Részletes leírás

Szigetszentmiklós Dunaparti részén eladó újépítésű lakás extrákkal!

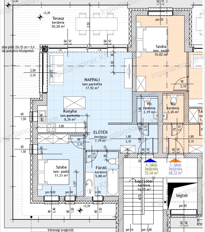
SZIGETSZENTMIKLÓS KÖZPONTJÁBAN, a Soroksári - Duna ágtól néhány percre, a Kék-Tó közelében, egy ÚJÉPÍTÉSŰ 53,44 m2 alapterületű + 30,28 m2 terasszal rendelkező, SZOBA + NAPPALIS, EMELETI LAKÁS ELADÓ!!

HITELEZHETŐ INGATLAN!

A lakás LUXUS kivitelezésű!
Igazi RITKASÁG az újépítésű ingatlan piacon!

Fűtése PADLÓFŰTÉSSEL, LAKÁSONKÉNT ELHELYEZETT HŐSZIVATTYÚVAL.

Alapáras műszaki paraméterek:
- sávalap:50x90 c25 vasbeton alapozás, zsalukő lábazat
- szerelőbeton:10-25 c25 vasbeton, 10/10x8 hegesztett vashálóval, gv45 szig.
- estrich beton: 7-12cm géppel simított aljzatbeton dilatációs szalaggal*
- körítő falazat 30 cm-es Porotherm téglából épült
- belső válaszfalak is 30 cm-es Porotherm téglából készültek
- homlokzati dryvit szigetelés EPS 80 150mm, 1,5mm dörzsölt nemes vakolat
- padló hőszigetelés: 15cm EPS lépésálló
- mennyezeti hőszigetelés: Cellulózszigetelés 200mm
- lábazati szigetelés: XPS 150mm
- teraszok - erkélyek WPC borítással
- 3 rétegű, 7 légkamrás, VEKA külső nyílászárók
- Nyílászárók - külső színezettek
- AA energetikai besorolás
- fafödémes helyben ácsolt tetőszerkezet statikai terv alapján, hullámos betoncseréppel fedett
- színezett ereszcsatorna, lefolyócsövek, vápák
- hőszivattyú fűtés teljes padlófűtéssel, egyedi méréssel
- szaniterek, szerelvényekkel 550.000.- Ft/lakás választható

Helyiségei:
53,44 m2
- 1 hálószoba (11,31m2)
- Nappali - Étkező (17,92m2)
- Konyha (8,35m2)
- Előtér (7,79m2)
- Wc (2,19m2)
- Fürdő (5,88m2)
- Terasz (30,28m2)

BERUHÁZÓ SZÁMTALAN REFRENCIÁVAL RENDEKEZIK, jelenleg több helyszínen futó építkezéssel! Leinformálható kivitelező Cég!

Az építkezés befejezése a vevő igénye szerint történhet, a főfalakon kívül, még több minden módosítható, illetve egyedi igények megvalósíthatóak!

2025 ÉVVÉGÉN AKÁR BEKÖLTÖZHETŐ!

IDŐS és FIATAL KOROSZTÁLY SZÁMÁRA is KIVÁLÓ VÁLASZTÁS, vagy akár BEFEKTETÉSI CÉLBÓL is!

Központi elhelyezkedésének köszönhetően a megújuló, gyors és csendes Hév-vel Budapest fél órán belül elérhető lesz.
Az M0 autópálya pedig gyors eléréseket biztosít minden irányba.
A közelben található kávézó, étterem, bölcsőde, iskola, kajak-kenukölcsönző és a tanösvény. HÉV megálló, buszmegálló néhány perc alatt érhető el gyalogosan.

Az alapáron felül beépített extrák:
Pergola árnyékoló rendszer
3.300.000.-
Elektromos redőny-antracit szerelve 2.200.000.-
Redőny okosítás
75.000.-
Villany extra kiállások, szerelvények 278.560.-
Klíma alapszerelés
294.000.-
Klíma beszerelés
596.000.-
Törölköző szárító
126.000.-
jakuzzi fürdőkád wellis kiépítés
1.400.000.-
Külső színezett nyílászárók felár
300.000.-
Emelő-toló felár
1.250.000.-
Bejárati ajtó felár
147.000.-
Okos-zár rendszer
175.000.-
Gipszkartonos extra munkák
425.000.-
Festés felár
120.000.-
Üvegkorlát felár
1.810.000.-
Kerítés közös ¼
1.200.000.-
Térkövezett parkoló
1.986.000.-


További bővebb információkért forduljon hozzám bizalommal, akár hétvégén is! Ha nem tudom fogadni hívását, visszahívom.

Cégünk ingyenes hitel ügyintézést biztosít a megvásárláshoz.

Kapcsolat

Tassi Róbert

Ossza meg a hirdetést:
FacebookGplusTwitter