További paraméterek
CSOK igényelhető
Jó közlekedéssel
Otthon Start 3%-os hitellel
Sürgős- Kilátás: Utcára
- Fűtés: Padlófűtés
- Szintek száma: 3
- Internet: Optikai
- Akadálymentesítés: Nem akadálymentesített
Részletes leírás
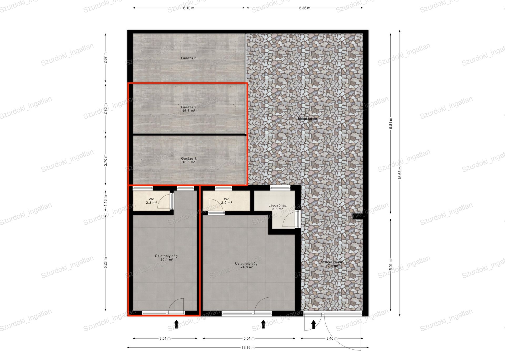
Szegeden, a Kálvária sugárúton ELADÓ egy különleges adottságokkal rendelkező, 109 m²-es, több részből álló tégla építésű ingatlan, melyhez dupla garázs, belső udvar és száraz beálló is tartozik!
A belváros peremén, mégis központi elhelyezkedéssel kínálunk eladásra egy 1996-ban épült, háromszintes, négy lakásos társasház I. emeletén található, 61 m²-es, jó állapotú, 2 szobás lakást. Az ingatlan része továbbá egy 32 m²-es dupla garázs, egy földszinti, 22,4 m²-es üzlethelyiség, valamint egy külön bejáratú, 25,3 m²-es garzonlakás is, amely bérbeadható.
Az ingatlanhoz tartozik egy belső udvar is, száraz beállóval. DNY-i fekvésének köszönhetően a szobák világosak, napfényesek. Kiváló választás lehet vállalkozóknak, befektetőknek, többgenerációs családoknak egyaránt.
Az ingatlan főbb jellemzői:
I. emeleti lakás (61 m²):
Elrendezés:
-2 szoba
-tágas étkező
-konyha
-fürdőszoba
-erkély
-közlekedő
Műszaki tartalom:
-dupla üvegezésű nyílászárók redőnnyel és szúnyoghálóval
-padlófűtés
-Ariston kondenzációs gázkazán
-32A (ellenőrzött villanyhálózat, réz vezetékekkel)
Tetőtéri garzon (25,3 m²):
Elrendezés:
-szoba
-konyha
-fürdőszoba
Műszaki tartalom:
-16A
-konvektoros fűtés
-fa tetőtéri ablakok
Garázs:
-2 db, belső udvari, 16,5 m²-es garázs
-elektromos kapuval felszerelve
Üzlethelyiség:
-földszinti
-22,4 m²
-saját illemhelyiség
-16A
-dupla üvegezéssel ellátott műanyag nyílászárók
Fontos előny:
Minden egységhez (lakás, garzon, üzlethelyiség) külön mérőórák tartoznak, az egyedi fogyasztás mérésének érdekében.
Belső kialakítás és lehetőségek:
Az ingatlan rendkívül praktikus elrendezésű, minden lakrész külön bejárattal rendelkezik, így ideális többgenerációs együttéléshez, de bérbeadásra vagy vállalkozási célokra is tökéletes.
A lépcsőház tágas, világos, a lépcsőfordulók plusz tárolási lehetőséget biztosítanak. A helyiségek világosak, jó elosztással rendelkeznek. Saját igényeknek megfelelően könnyen alakíthatóak.
Környék és közlekedés:
Központi elhelyezkedésének köszönhetően minden szolgáltatás, üzlet és tömegközlekedési lehetőség pár perc alatt elérhető. A közelben található a Kálvária tér, ahol játszótér és zöldövezet biztosít kellemes kikapcsolódást.
Közlekedés:
Villamos: 3-as, 3F-es
Busz: 12-es, 36-os, 21-es, 76-os, 77-es, 5030-as, 5031-es, 5032-es, 5033-as
Ajánlom:
többgenerációs családoknak, akik kényelmes, elkülöníthető lakrészeket keresnek egy otthonon belül,
befektetőknek, akik szálláshelyként, irodaként vagy rendelőként hasznosítanák az ingatlant,
olyan vásárlóknak, akik központi elhelyezkedésű otthont keresnek.
Az ingatlan tehermentes, 1/1-es tulajdon, három hónapon belül birtokba vehető.
További információért és időpont egyeztetésért keressen bizalommal!
A hirdetés látványtervekkel kiegészítve.

