Nyitólap Hirdetésfeladás Kapcsolat

Ingatlan hirdetések kizárólag ellenőrzött forrásból
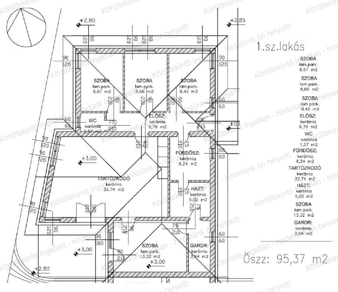
Eladó Téglalakás, Pomáz, Messelia
#698422731
119.9 millió Ft
Alapterület 111 m2,  463 m2-es telken
Szobák száma 5 szoba
Építési mód Tégla
Állapot Építés alatt
Emelet nincs megadva

További paraméterek

  • Kilátás: Kertre néző
  • Fűtés: Hőszivattyú
  • Szintek száma: 1
  • Komfort: Összkomfort

Részletes leírás

Pomázon a Meselia déli oldalában egy szintes, nappali + 4 hálószobás ikerház-fél eladó.

Pomázon a Meselia déli oldalában, csendes környezetben 463 nm-es saját, kizárólagos használatú kerttel rendelkező, egy szintes, nappali + 4 hálószobás ikerház-fél eladó.

Az építéssel kapcsolatos paraméterek:
- Tervezett átadás 2025 IV. negyedév
- hőszivattyús fűtés, padlófűtéssel, radiátorokkal
- magas minőségű hőszigetelés, ZÖLD hitelnek megfelelő energetikai besorolás
- több rétegű, műanyag nyílászárók
- választható belső burkolatok, szaniterek
- riasztó rendszer előkészítés
- 30 nm-es, az amerikai konyhás nappalihoz kapcsolódó terasz
- durva tereprendezés
- kulcsrakész átadás
Finanszírozási lehetőség:
- Zöld hitel kompatibilitás
- CSOK (10+15M) hitel, illeték mentesség, Áfa visszatérítés igényelhető.
- Az alaprajz igény szerint még módosítható.

A beruházó a környék elismert építési vállalkozója, rengeteg referenciamunkával rendelkezik.

Kapcsolat

Kiss Krisztina

Ossza meg a hirdetést:
FacebookGplusTwitter