|
98.2 millió Ft
|
|
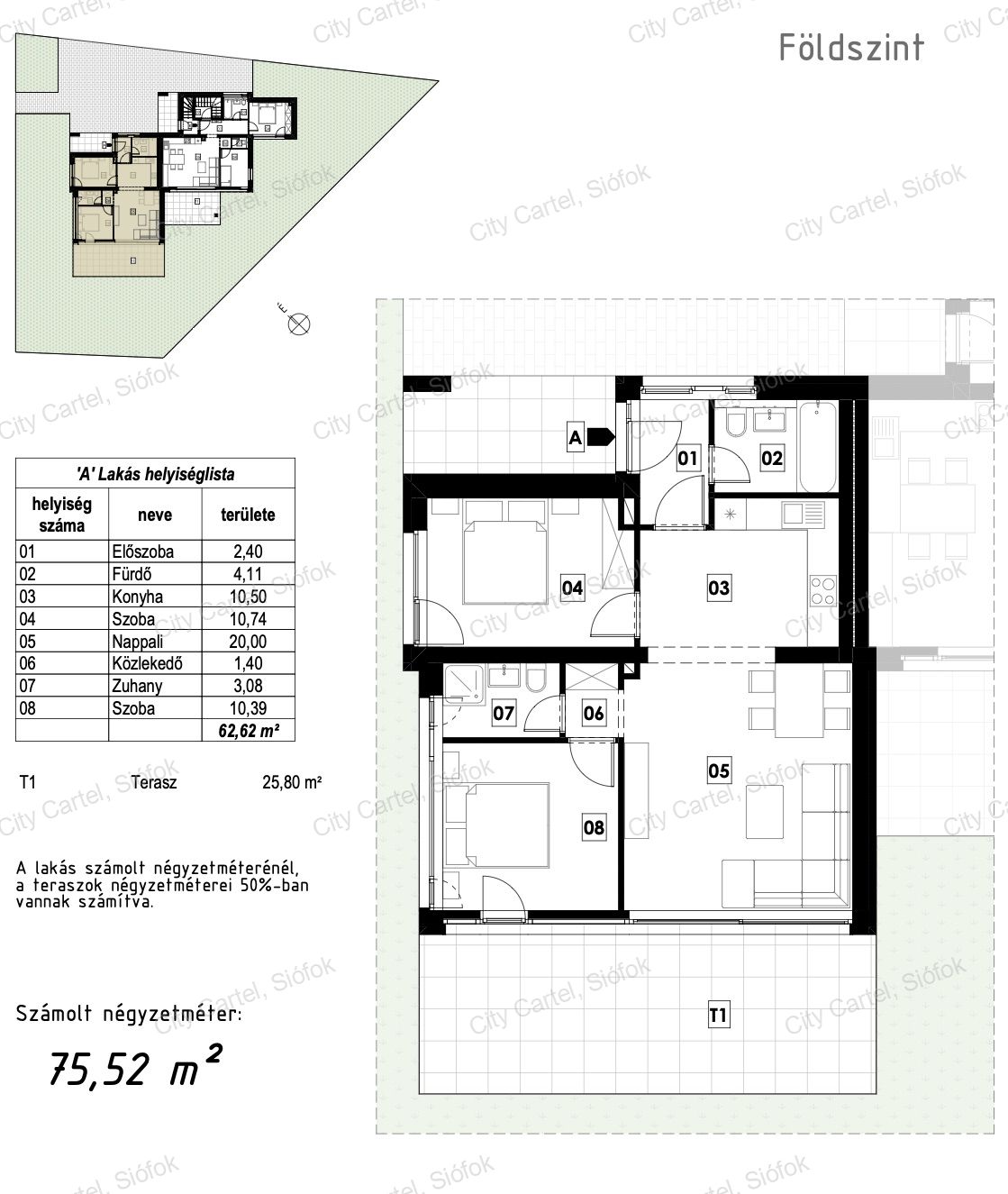
| Alapterület | 76 m2 |
| Szobák száma | 3 szoba |
| Építési mód | Tégla |
| Állapot | Új építésű |
| Emelet | Földszint |
További paraméterek
Erkélyes/teraszos
Kertkapcsolatos
Otthon Start 3%-os hitellel
Zöldövezeti- Kilátás: Udvari
- Fűtés: Hőszivattyú
- Szintek száma: 2
- Komfort: Összkomfort
- Akadálymentesítés: Nem akadálymentesített
Részletes leírás
Fonyód kedvelt, állandóan lakott részén ÚJ ÉPÍTÉSŰ földszinti lakás eladó!
A City Cartel Ingatlaniroda eladásra kínál egy 76 m²-es, modern kialakítású lakást egy 4 lakásos, exkluzív társasházban. Az ingatlan jelenleg szerkezetkész, de kulcsrakész állapotban kerül átadásra, így még lehetőség van bizonyos belső kialakítások személyre szabására.
A lakás elosztása:
- előszoba
-t ágas, amerikai konyhás nappali
- 2 külön nyíló hálószoba
- 1 zuhanyzós fürdőszoba
- 1 kádas fürdőszoba
- 26 m²-es terasz, amely kiváló helyszín pihenéshez vagy vendégfogadáshoz
Műszaki tartalom:
- modern hőszivattyús rendszer
- padlófűtés
- mennyezeti hűtés-fűtés, a teljes lakás komfortos klímájáért
A Balaton partja kb. 2 km távolságra található, így a nyugalom és a tó közelségének tökéletes kombinációját kínálja.
Akció az előértékesítés keretében: AJÁNDÉK gépkocsibeállóval!
Ideális választás állandó lakhatásra, nyaralónak vagy befektetésnek egyaránt.
További információkért írjon, vagy hívjon, a hét bármely napján az alábbi elérhetőségeim egyikén!
Irodáink:
8600 Siófok, Fő tér 6. (Sió Pláza -1. szint)
8640 Fonyód, Ady Endre u. 5. (Balaton Áruház földszint)
8638 Balatonlelle, Rákóczi út 276.
Kövess minket Facebook-on is: @citycartelbalaton!

