|
179 millió Ft
|
|
| Alapterület | 78 m2 |
| Szobák száma | 3 szoba |
| Építési mód | Tégla |
| Állapot | Kiváló |
| Emelet | 2. emelet |
További paraméterek
Azonnal költözhető
Jó közlekedéssel- Kilátás: Utcára
- Fűtés: Padlófűtés
- Bútorozottság: Bútorozott
- Szintek száma: 4
- Komfort: Dupla komfort
- Akadálymentesítés: Akadálymentesített
Részletes leírás
Különleges, Egyedi, Modern Polgári Otthon a XII. Kerület Szívében!
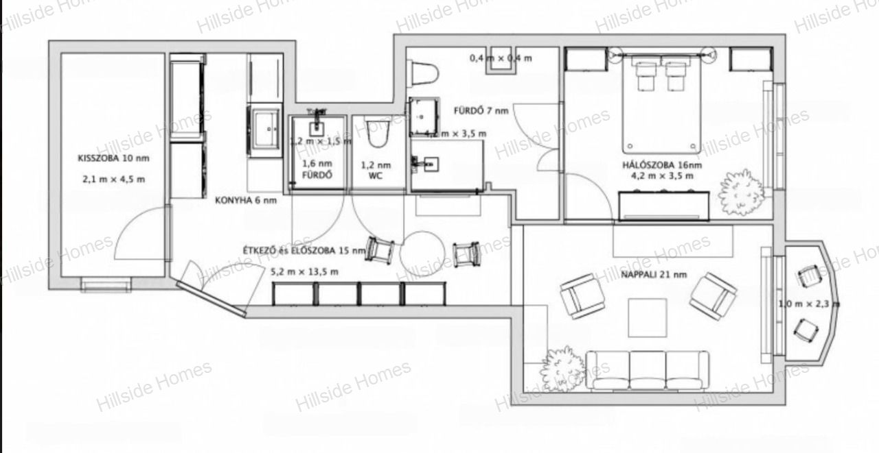
Eladó egy különleges, 78 nm-es, 3 szobás, erkélyes lakás a XII. kerületben, egy 1914-ben épült, liftes, jó állapotú társasház 2. emeletén.
Egy belsőépítészeti stúdió által gondosan megtervezett és kivitelezett otthon a múlt eleganciáját ötvözi a modern dizájn frissességével. Ez a harmonikus enteriőr vintage és kortárs elemek tökéletes egyensúlyával, valamint Dukai István kortárs művész alkotásaival kínál egyedülálló életérzést azok számára, akik értékelik a minőséget és a karakteres otthonokat.
A lakás tulajdonságai:
A 6,5 hónap alatt újjáépített, 78 nm-es lakás 3 szobával, 2 fürdőszobával és déli fekvésű erkéllyel rendelkezik.
Új, az eredeti stílust idéző fa nyílászárók, hűtő-fűtő klíma minden szobában, padlófűtés a hidegburkolatos helyiségekben, olasz burkolatok, angol tapéták és prémium kivitelezés garantálja a minőséget. Az egyedi bútorok – mint az asztalos által készített konyha, gardrób, TV-szekrény és előszobabútor – mellett Breuer Marcell szék, klasszikus márvány dohányzóasztal, valamint egy 1960-as évekbeli angol komód emeli a lakás presztízsét.
A hálószobák egyike saját, üvegajtós fürdőszobával, a másik külön zuhanyzóval és WC-vel rendelkezik.
Lokáció: A XII. kerület pezsgő, mégis élhető részén található, ahol minden karnyújtásnyira van: kávézók, boltok, a Szamos Cukrászda, a Fragola, a Mom Park, iskolák és a Polgármesteri Hivatal előtt rendezett kézműves vásárok, nemzetközi fesztiválok, valamint délutáni tangó programok színesítik a mindennapokat.
A lakás előnyei:
Azonnal költözhető, napfényes (10-18 óra között), alacsony fenntartási költségekkel. A vételár tartalmazza az egyedi bútorokat, a gépesített konyhát, a beépített tárolókat, valamint az erkély kávézóasztalát és székeit. Dukai István kortárs művei (opcionálisan megvásárolhatók) különleges harmóniát kölcsönöznek a térnek, összekötve a múltat a jelennel.
Közlekedés és parkolás:
Kiváló közlekedési kapcsolatokkal rendelkezik, a tömegközlekedési eszközök és a Mom Park közelsége kényelmes elérhetőséget biztosít. A parkolás a környéken megoldható.
Ez az otthon azoknak szól, akik egyedi, kifinomult környezetben szeretnének élni, ahol a részletek iránti szenvedély és a minőségi kivitelezés találkozik. Tökéletes választás a modern polgári életstílust kedvelők számára, akik értékelik a XII. kerület pezsgő, mégis nyugodt atmoszféráját.
Személyes megtekintés során szívesen mesélek Dukai István műveinek történetéről és a lakás különleges részleteiről. Lépjen kapcsolatba velünk, és fedezze fel ezt a páratlan otthont!

