Nyitólap Hirdetésfeladás Kapcsolat

Ingatlan hirdetések kizárólag ellenőrzött forrásból
Eladó Téglalakás, Budapest, XII. kerület, Széchenyihegy
#200802214
499 millió Ft
Alapterület 420 m2,  692 m2-es telken
Szobák száma 8 szoba
Építési mód Tégla
Állapot
Emelet nincs megadva

További paraméterek

  • Kertkapcsolatos
  • Zöldövezeti
  • Kilátás: Panorámás
  • Fűtés: Gázkazán
  • Bútorozottság: Gépesített
  • Szintek száma: 4
  • Komfort: Dupla komfort
  • Internet: Optikai

Részletes leírás

Széchenyi-hegy csendes mellékutcájában panorámás családi ház

Elhelyezkedés
A ház a Széchenyi-hegyen, Budapest XII. kerületének egyik legkedveltebb, nyugodt, zöldövezeti részén, csendes mellékutcában helyezkedik el, ahol a természet közelsége és a budai hegyvidék nyugalma biztosított, miközben a belváros gyorsan elérhető. A környék infrastruktúrája kiváló: busz- és villamosmegállók, bevásárlási lehetőségek, orvosi rendelő, óvodák és iskolák egyaránt rendelkezésre állnak, így az itt élők minden fontos szolgáltatást karnyújtásnyira találhatnak.

 

A ház jellemzői

Az épület saját részre, magas minőségű anyagokból épült 29 éve, jó műszaki állapotban. A déli-délnyugati tájolásnak köszönhetően egész nap világos, tágas, napfényes terek jellemzik. A reprezentatív szobákhoz több kisebb és nagyobb terasz kapcsolódik, amelyekről gyönyörű hegyvidéki panoráma tárul elénk.

Az ingatlan szerkezeti és műszaki megoldásai: monolit födém, 30-as Porotherm falazat, 10 cm dryvit szigetelés, Vaillant gázkazán padló- és radiátoros fűtéssel, 3×35 amper elektromos kapacitás. A burkolatok között márvány és gránit is megtalálható, a nyílászárók jó állapotban vannak.

 

Extrák és lehetőségek

A gondozott, örökzöldekkel és ősfákkal beültetett kert kellemes pihenőkörnyezetet biztosít. Az ingatlanhoz 50 m²-es garázs tartozik, amely elektromos kapun és fűthető lehajtón közelíthető meg (ára: 40 M Ft).

A szomszédos, 290 m²-es telek is megvásárolandó, amely tovább növeli a beépítési és fejlesztési lehetőségeket (ára: 70 M Ft).

 

Lakáskialakítás és átalakítási lehetőség
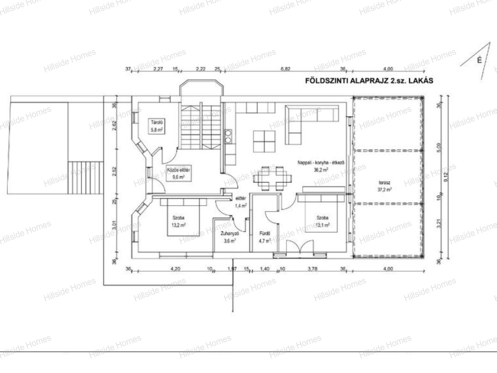
Az ingatlan jelenleg egybenyitott családi házként funkcionál, teljes hasznos alapterülete lehetővé teszi a rugalmas lakáskialakítást. A meglévő épület teljes tervdokumentációja alapján a ház átalakítható két vagy akár négy önálló lakásra: a földszinten egy ~100 m²-es, kertkapcsolatos lakás 58 m² fedett terasszal, a magasföldszinten 72 m²-es lakás 37 m² fedett terasszal, az első emeleten 92 m² lakás 31 m² terasszal, míg a második emeleten ~80 m² lakás 11 m² terasszal alakítható ki. Az egyes szintek akár önállóan, akár összenyitva is használhatók, így a ház rugalmasan alakítható a vevő igényei szerint: többgenerációs családi otthonként, többlakásos társasházként vagy prémium befektetési projektként.

 

Összegzés

Ez az ingatlan ritka lehetőség a XII. kerület egyik legszebb részén. Mérete, elhelyezkedése és adottságai révén tökéletes választás lehet többgenerációs családoknak, illetve befektetőknek és ingatlanfejlesztőknek, akik prémium színvonalú, több lakásos projektben gondolkodnak.

További információért, t vagy megtekintés egyeztetéséhez kérem, vegye fel velem a kapcsolatot. Ez a ház nem csupán egy ingatlan, hanem hosszú távú érték és lehetőség a budai hegyvidék szívében.

Kapcsolat

Szilágyi Péter

Tanácsadó

Ossza meg a hirdetést:
FacebookGplusTwitter