Eladó Panellakás, Budapest, VII. kerület                
                    
#389035
                    | 
109.9 millió Ft                                 | |
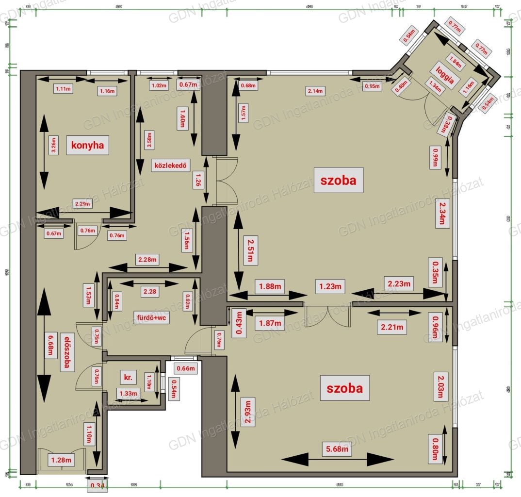
| Alapterület | 82 m2 | 
| Szobák száma | 2 szoba | 
| Építési mód | nincs megadva | 
| Állapot | Felújítandó | 
| Emelet | 1. emelet | 
További paraméterek
- Kilátás: Utcára
- Fűtés: Cirkó
- Komfort: Összkomfort
Részletes leírás
Különleges, napfényes saroklakás a belváros szívében – Erzsébet körút és Király utca találkozásánál!
Eladó egy első emeleti, 82 m²-es, páratlan adottságokkal rendelkező saroklakás Budapest egyik legfrekventáltabb pontján, az Erzsébet körút és a Király utca kereszteződésénél.
A lakás minden ablaka utcára néz, így egész nap napfényben úszik, páratlan kilátással a körút pezsgő életére. A 4 méteres belmagasság és a nagy terek elegáns, tágas érzetet biztosítanak.
Jelenlegi kialakítása lehetővé teszi egy amerikai konyhás nappali + 2 hálószobás otthon megtervezését, amely akár családi lakásként, akár reprezentatív irodaként is tökéletes választás.
Az ingatlan első emeleti, liftes házban található, a társasház jó állapotú és rendezett.
Egy valódi belvárosi ékszerdoboz, amely a felújítást követően modern, karakteres otthonná válhat Budapest egyik legikonikusabb helyszínén!
ID: 389035
                    
 
                                


