Nyitólap Hirdetésfeladás Kapcsolat

Ingatlan hirdetések kizárólag ellenőrzött forrásból
Eladó Ikerház, Győrság
#196400803
59.9 millió Ft
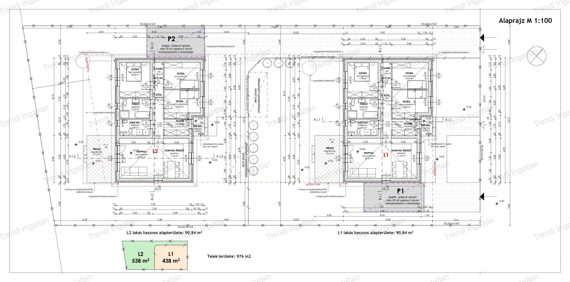
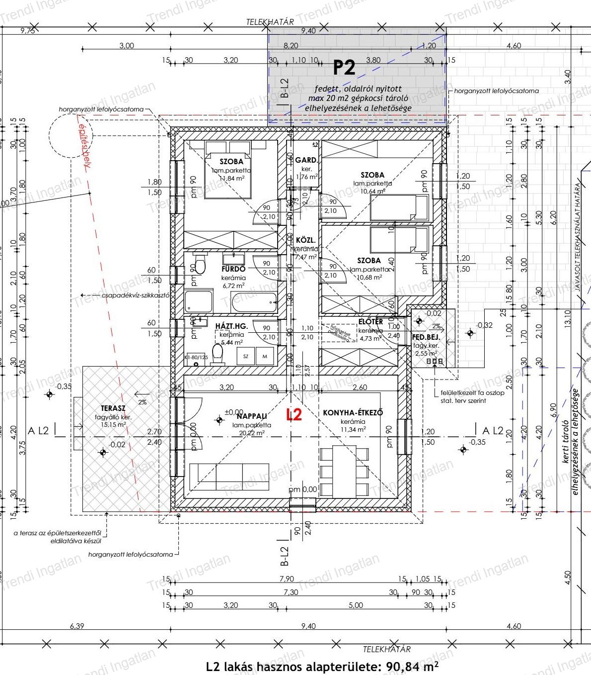
Alapterület 91 m2,  538 m2-es telken
Szobák száma 4 szoba
Építési mód Tégla
Állapot Új építésű
Emelet nincs megadva

További paraméterek

  • CSOK igényelhető
  • Igényes
  • Kertkapcsolatos
  • Megújuló energiaforrás
  • Otthon Start 3%-os hitellel
  • Remek ajánlat!
  • Sürgős
  • Új építésű!
  • Fűtés: Hőszivattyú
  • Komfort: Összkomfort

Részletes leírás

Nappali + 3 szobás ház

Győrságon új építésű 90,84 nm-es nappali + 3 szobás ikerház 538 nm-es telekrészen eladó. A két ház önállóan megközelíthető, nincs közös fal.

A remek elosztású házban amerikai konyhás nappali, 3 szoba, fürdőszoba, háztartási helyiség, előtér, gardrób, közlekedő található. A nappaliból 15,15 nm-es terasz nyílik.

A ház 30-as falazóelemből, 15 cm-es homlokzati szigeteléssel, 3 rétegű műanyag nyílászárókkal kerül kivitelezésre. Az ingatlan fűtését és melegvíz ellátását hőszivattyú biztosítja padlófűtéssel. Felár ellenében kerti csap, klíma- és riasztó előkészítés, terasz, térkövezés kérhető.

Fűtéskész átadás várható ideje: 2026 ősz

Az ingatlan fűtéskész ára: 59.900.000 Ft. Kulcsrakész befejezés kérhető.
Az ár tartalmazza a telek árát is.

Bővebb információkért forduljon hozzám bizalommal.
Hétköznap és hétvégén is várom hívását!

Díjmentes, bankfüggetlen hitelügyintézéssel állunk rendelkezésére.

A hirdetésben feltüntetett képek illusztrációk.

Kapcsolat

Neizer Éva

Ingatlanértékesítő

Ossza meg a hirdetést:
FacebookGplusTwitter