Nyitólap Hirdetésfeladás Kapcsolat

Ingatlan hirdetések kizárólag ellenőrzött forrásból
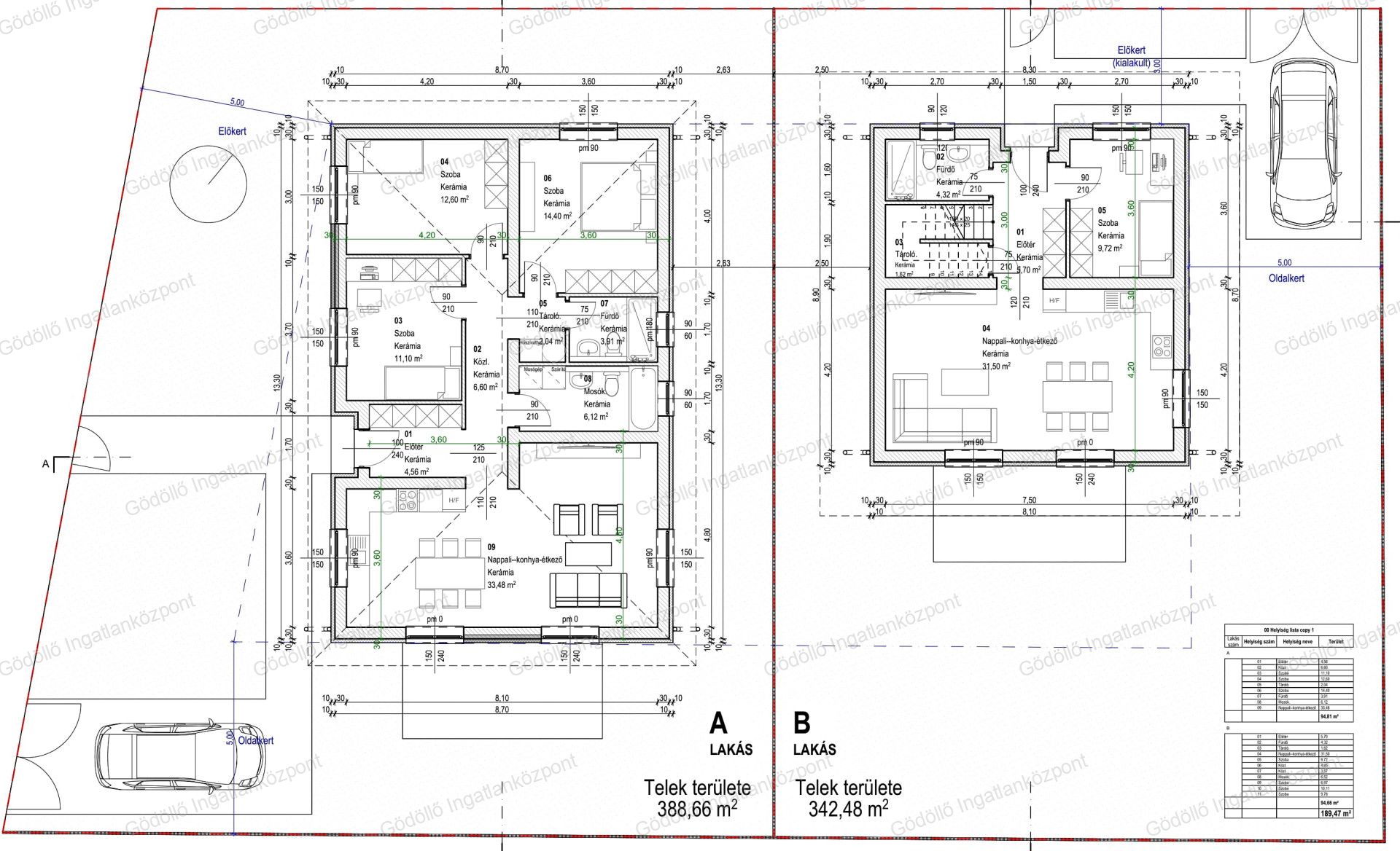
Eladó Ikerház, Gödöllő
#2518227
115 millió Ft
Alapterület 95 m2,  342 m2-es telken
Szobák száma 5 szoba
Építési mód Tégla
Állapot Új építésű
Emelet nincs megadva

További paraméterek

  • Hőszivattyú
  • ÚJ AJÁNLAT
  • ÚJ ÉPÍTÉSŰ
  • Fűtés: Gázkazán
  • Szintek száma: 2
  • Komfort: Összkomfort

Részletes leírás

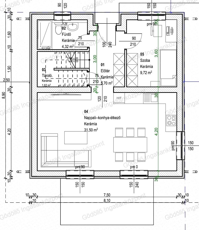
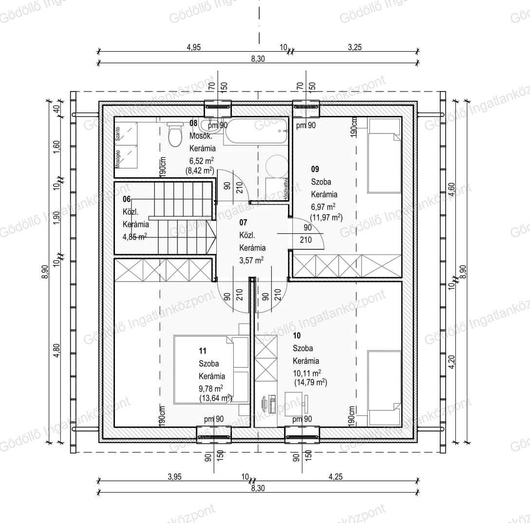
Gödöllő blahai részén, csendes, nyugodt környezetben, nappali + 4 szobás újépítésű ikerházfél referenciákkal rendelkező, megbízható építőtől eladó!

Műszaki paraméterek:
- 30-as Porotherm tégla falazat + 10cm grafit szigetelés,
- beton cserépfedés,
- födémen 20cm vastag kőzetgyapot,
- 3 réteg üvegezésű, 5 légkamrás hőszigetelt nyílászárókkal, redőny előkészítéssel,
- kondenzációs kazán vagy hőszivattyú (+3Mft), padlófűtéssel,
- riasztó előkészítés, 
- hűtő-fűtő klíma 250.000.-Ft-ig,
- bejárati ajtó: 250.000.-Ft,
- beltéri ajtók: 70.000.-Ft/db,
- kerámia burkolatok 5.500.-Ft/nm,
- parketta 4.500.-Ft/nm,
- mosdó 20.000.-Ft/db,
- WC 30.000.-Ft/db,
- csaptelepek 15.000.-Ft/db,
- kád 50.000.-Ft,
- zuhanyfolyóka 25.000.-Ft,
- helyiségenként 1db kiállás + kiállások 25.000.-Ft/db,
-  helyiségenként 1db kapcsoló + kapcsolók 35.000.-Ft/db.

Elosztás:
- Földszint: előtér, nappali-konyha-étkező, kamra/tároló, egy szoba, fürdőszoba + terasz.
- Emelet: 3 szoba, közlekedő, mosókonyha/fürdő.

Telek:
- 342,5nm-es telken helyezkedik el, parkoláshoz kocsibeálló kerül kialakításra,
- kaputól a bejárati ajtóig 1m széles, térkövezett járda,
- Kerítés díszkővel, fa vagy acél közökkel.

Környék:
- Csendes, nyugodt környék, Tesco, Lidl, Aldi, éttermek, iskola, óvoda, buszmegálló percek alatt könnyen elérhető.

Az ingatlant megbízható kivitelező építi! Burkolatok, belső ajtók a vevői igényei szerint még szabadon választhatók!

Kérésre teljes műszaki tartalmat, alaprajzot szívesen küldünk!

Várható kulcsrakész átadás: szerződéskötéstől 6 hónap

Irányár: 155.000.000.-Ft

Hivatkozási szám: 2518227.

Megtekinthető telefonos időpont egyeztetés alapján:
Sápi Balázs +36 20 772-2429 [email protected] 
GÖDÖLLŐ INGATLANKÖZPONT - www.godolloi.hu: Gödöllő és környéke legnagyobb ingatlan választéka /Gödöllő, Szada, Veresegyház, Kistarcsa, Kerepes, Erdőkertes, Fót, Dunakeszi/ eladó-kiadó családi ház, telek, lakás! Ingatlan építés és felújítás!

Kapcsolat

Sápi Balázs

Ossza meg a hirdetést:
FacebookGplusTwitter