Eladó Családi ház, Sopron, Kertváros
#190200813
|
79.9 millió Ft
|
|
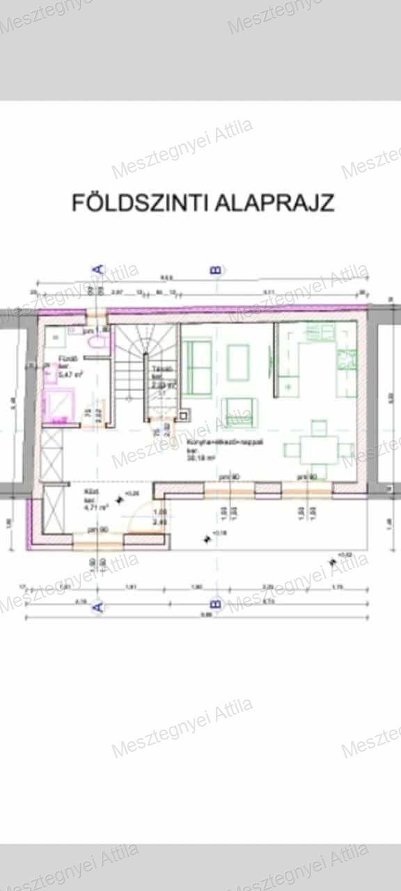
| Alapterület | 100 m2, 50 m2-es telken |
| Szobák száma | 3 szoba |
| Építési mód | Tégla |
| Állapot | Újszerű |
| Emelet | Magasföldszint |
További paraméterek
Jó közlekedéssel
Kertkapcsolatos
Otthon Start 3%-os hitellel
Zöldövezeti- Kilátás: Udvari
- Fűtés: Cirkó
- Bútorozottság: Bútorozatlan
- Komfort: Összkomfort
- Internet: Szélessávú (>10Mbps)
- Akadálymentesítés: Nem akadálymentesített
Részletes leírás
Eladó sorház Sopron Hajnal tér közelében – Azonnali költözés!
Eladó egy új építésű, 100 m²-es sorház Sopron belvárosához közel, a csendes és nyugodt Hajnal téren. A modern, világos otthon tökéletes választás azoknak, akik kényelmes, tágas és jól megközelíthető lakóhelyet keresnek.
Jellemzők:
100 m² lakóterület
Nappali + 2 szoba, ideális családok számára
Kiváló minőségű új építés, modern kialakítással
Tágas, napfényes belső terek
Kocsibeálló és tároló is tartozik a házhoz
Azonnal költözhető
Az ingatlan környezete rendkívül nyugodt, mégis minden fontos szolgáltatás könnyen elérhető. A városközpont, üzletek, iskolák és közlekedési lehetőségek mind csupán pár percnyi távolságra találhatóak.
Ár: 79.9millió Ft
Ne hagyja ki ezt a kiváló lehetőséget! Hívjon még ma, hogy személyesen is megtekinthesse! 06709424509
