Nyitólap Hirdetésfeladás Kapcsolat

Ingatlan hirdetések kizárólag ellenőrzött forrásból
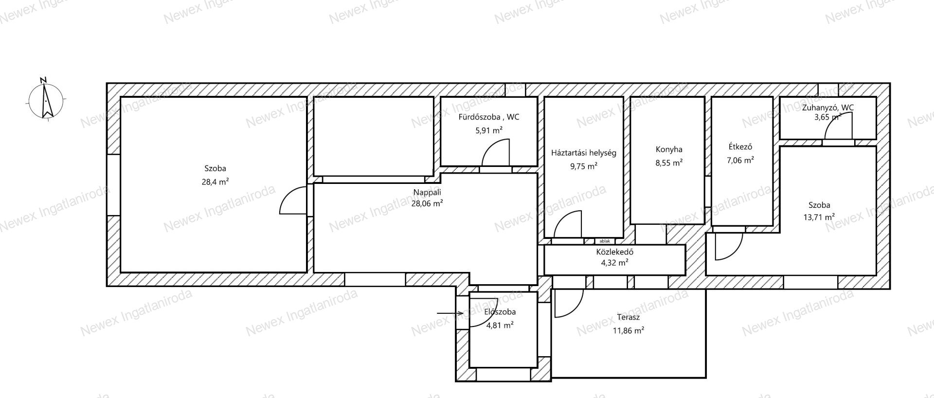
Eladó Családi ház, Sajószentpéter
#698900707
28.4 millió Ft
Alapterület 115 m2,  1 258 m2-es telken
Szobák száma 2 szoba
Építési mód Vegyes
Állapot
Emelet nincs megadva

További paraméterek

  • #SZERZŐDÉS KÖTÉS ELŐTT
  • #VÉTELI AJÁNLAT ALATT
  • Kilátás: Udvari
  • Fűtés: Cirkó
  • Szintek száma: 1
  • Komfort: Összkomfort
  • Akadálymentesítés: Nem akadálymentesített

Részletes leírás

Jó helyen, jó árban családi ház eladó!

Sajószentpéter szívében – Hangulatos családi ház nagy telekkel, cirkófűtéssel és kandallóval!

 

Eladó egy 115 m²-es, barátságos családi ház Sajószentpéter központi részén, amely a nyugalmat és kényelmet kereső családok számára ideális választás. Az ingatlan egy tágas, 1 258 m²-es telken fekszik, így bőven jut hely pihenésre, kertészkedésre vagy akár egy jövőbeli bővítésre is.

 

A ház vegyes építésű, de jó állapotú, folyamatosan karbantartott, így akár azonnal költözhető.
A két tágas szoba otthonos hangulatot áraszt, míg a két fürdőszoba praktikus megoldást kínál családosoknak.

 

A cirkófűtés biztosítja a modern komfortot, míg a hangulatos kandalló gondoskodik a meghitt téli estékről.

 

Főbb jellemzők:
- Hőszigetelt nyílászárók
- Felújított tetőszerkezet
- Tágas terasz
- Nagy, rendezett telek (1 258 m²)
- Fűtés: cirkó + kandalló
- Két fürdőszoba

 

Az ingatlan 1950-ben épült, és a tulajdonosok gondos kezei alatt megőrizte otthonos, meleg karakterét — miközben lehetőséget kínál, hogy új tulajdonosa saját ízlésére formálja.

 

Irányár: 28 400 000 Ft

 

Ne hagyja ki ezt a ritka lehetőséget Sajószentpéteren, ahol a tágas tér, barátságos környezet és kényelmes otthon találkozik!
Vegye fel velünk a kapcsolatot még ma, és győződjön meg személyesen ennek a háznak a különleges hangulatáról!

Kapcsolat

Kozák Csaba

Irodavezető

+36 30 165-3051
kozak.csaba@newex.hu
Ossza meg a hirdetést:
FacebookGplusTwitter