|
149 millió Ft
|
|
| Alapterület | 186 m2, 470 m2-es telken |
| Szobák száma | 5 szoba |
| Építési mód | Tégla |
| Állapot | Új építésű, azonnal költözhető |
| Emelet | nincs megadva |
További paraméterek
5 %-os ÁFA
Azonnal költözhető
CSOK igényelhető
D és Ny tájolás
építés alatt
Erkély-Terasz
Garázs, saját kocsibeálló
Jó közlekedéssel
Kertkapcsolatos
Megújuló energia!
Saját zöld terület
Sürgős
Szigetelt épület
Új építésű
Zöldövezeti- Kilátás: Részpanoráma
- Fűtés: Hőszivattyú
- Bútorozottság: Részben bútorozott
- Komfort: Dupla komfort
Részletes leírás
Pannonhalmán 2 nappalis+3hálószobás+garázsos+saját kertes ÚJ ház ELADÓ. Ahol a prakikum és minőség találkozik.
Pannonhalma csendes de központi helyén épült fel ez a 162 nm-es impozáns lakóház, 23 nm-es garázzsal.
IDE CSAK KÖLTÖZNI KELL!!
Gyönyörű vonalvezetés gondos tervezés, amik tisztelik az múlt idő értékeit. Tájba illeszkedő, gyönyörű otthon..
A múlt és a jelen minőségi találkozása.
A közel 1000nm-es telekre egy ikerház került felépítésre. Egyenként 450-500 nm telekrésszel.
Az 1.számú - bal oldali keresi gazdáját.
Az otthont az utcáról el lehet érni! Nincs szolgalmi út.
Lakásonként leválasztott, saját telekrész, saját közüzemi órákkal, GARÁZSOKKAL KAPCSOLÓDVA.
Akár családi ház is lehetne.
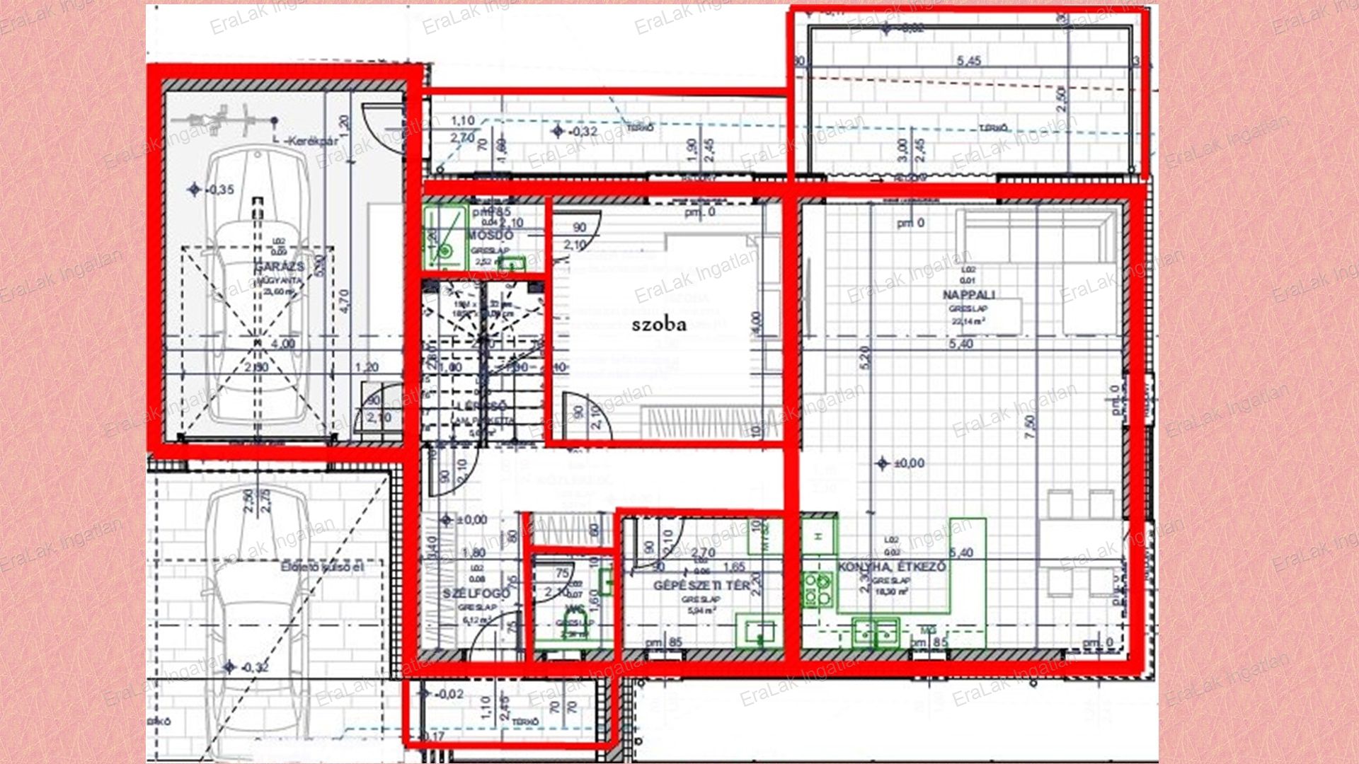
A belső két szintes tágas lakásban az alsó szinten
tágas amerikai konyhás étkezőt és nappalit
nagy méretű hálószobát - külön mosdóval
külön wc-t
gépészeti helyiséget
szélfogót és
térkövezett hatalmas teraszt találunk.
A felső szinten
a két közel 20 nm-es szoba mellett
egy külön nappalit vagy közösségi teret és
fürdőszobát is kialakítottak.
Energiatakarékos szerkezet - energiahatékony fenntartás.
A beton sávalapra 30 cm-es porotherm vázkerámia falazat került, 20 cm-es homlokzati szigeteléssel.
A két szint között monolitbeton födém készült.
A nyílászárói 6 légkamrás tokkal 3 rétegűek, szürke színben.
A garázskapuk Hörmann szekcionált rendszerűek.
A fűtésről és melegvíz ellátásról hőszívattyú gondoskodik, padlófűtéssel.
Ami egyedi - :
egyedi konyha prémium minőségben -asztalos által készített bútor, minőségi gépek, egyedi-beton pult
minőségi burkolatok - mind a hideg - mind a meleg
beépített szekrény a közlekedőben, illetve a lépcsőházban
modern fürdőszobák
garázs közvetlen lakás- és kertkapcsolattal
hőszivattyús mennyezeti hűtés és padlófűtés
Triál klíma berendezés
egyedi színű műanyag nyílászáró
külső árnyékolás elektromosan működtethető zsaluziával
Hörmann motoros garázskapu
Tágas-burkolt-festett GARÁZS, Elektromos mozgatású kapubejáró
Kiépített vagyonvédelem
Szellőzőrendszer előkészítés
Vízkezelő előkészítés
Csodás kert - gyepszőnyeggel - öntöző berendezéssel.
Kulcsrakészen - felszerelt konyhával - kész füdőkkel - parkosított udvarral - kerítve - AZONNAL ÁTVEHETŐ.
Hívjon, akár hétvégén is. Nézzük meg együtt ezt a ragyogó ajánlatot.
Irodánkban bankfüggetlen hitel tanácsadással és ügyintézéssel segítjük álmai megvalósításában.
CSOK és állami támogatások intézése.
Jogi és energetikai háttér.

