|
39.5 millió Ft
|
|
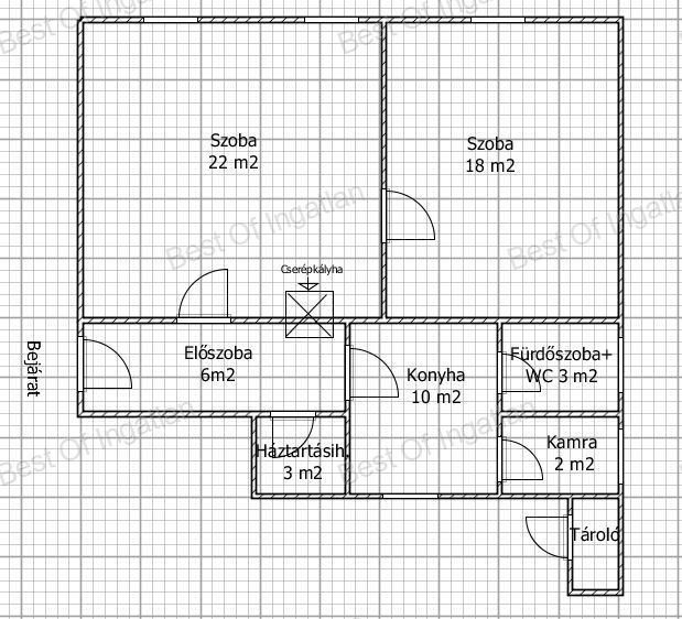
| Alapterület | 64 m2, 988 m2-es telken |
| Szobák száma | 2 szoba |
| Építési mód | Tégla |
| Állapot | Felújítandó |
| Emelet | nincs megadva |
További paraméterek
Azonnal költözhető
CSOK igényelhető
Egyedi Ajánlat!
Jó közlekedéssel
Kertkapcsolat
Kertkapcsolatos
Otthon Start 3%-os hitellel
Részben bútorozott!
Saját tároló
Zöldövezeti- Kilátás: Udvari
- Fűtés: Konvektor
- Bútorozottság: Részben bútorozott
- Szintek száma: 1
- Komfort: Összkomfort
- Akadálymentesítés: Akadálymentesített
Részletes leírás
Nyúlon akadálymentes, felújítandó, 2 szobás családi ház, 988 m2-es telken, tárolóval eladó!
A Best Of Ingatlan Győr eladásra kínálja Győrtől 10 km-re, Nyúlon található 64 m2-es, akadálymentes, felújítandó családi házat, 988 m2-es telken, tárolóval!
Az ingatlan tehermentes, azonnal költözhető!
Kedvező áron megveheti és saját ízlésére formálhatja, alakíthatja új otthonát!
Lássa meg benne a lehetőséget.....
A felújítandó, összközműves családi ház paraméterei:
- 988 m2-es nagy telken egy kis családi ház, az ingatlan még összességében 30%-ban beépíthető, ezért több lehetőséget is kínál.
- téglából, kőporos vakolattal, cseréptetővel épült
- fa ablakok, redőnnyel felszereltek
- lakótér: 64 m2-es, 988 m2 telken
- belső elosztása: előszoba, 2 szoba, háztartási helyiség, konyha + étkező, kamra, fürdőszoba + wc
- fűtése konvektorral és cserépkályhával történik
- Ny -i fekvésű
- a parkolás udvaron belül megoldható
Az ingatlan jelenleg is lakható, de esztétikai felújítással csodát tehet vele!
A 82-es főútvonal és az M1-es autópálya is könnyen elérhető.
A hangulatos kis településen minden van, amire a mindennapokban szüksége lehet, üzletek, boltok, buszmegálló, orvosi rendelő, gyógyszertár, óvoda, iskola, Takarékbank, posta stb.
Saját ízlésére formálhatja új otthonát!
Azonnal birtokba vehető!
Bővebb információért hívjon bizalommal.
Fülöpné Máté Ildikó
+36 30/993-2787
További szolgáltatásaink:
- díjmentes, bankfüggetlen hitelügyintézés
- értékbecslés
- energetikai tanúsítvány
- ügyvédi ügyintézés
- biztosítás

