Eladó Családi ház, Máriakálnok, Aranyossziget
#679700588
|
72.48 millió Ft
|
|
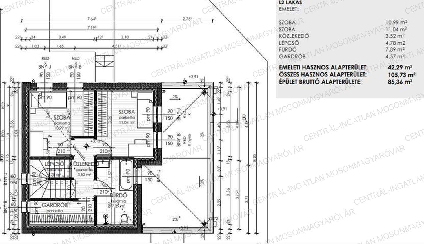
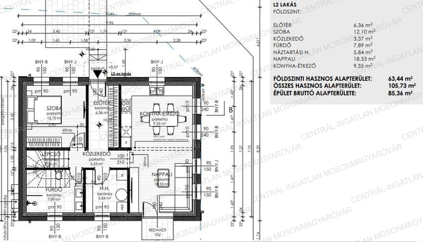
| Alapterület | 106 m2, 310 m2-es telken |
| Szobák száma | 4 szoba |
| Építési mód | Könnyűszerkezetes |
| Állapot | Új építésű |
| Emelet | nincs megadva |
További paraméterek
Áron alul
CSOK igényelhető
Kertkapcsolatos
Otthon Start 3%-os hitellel
Zöldövezeti- Kilátás: Kertre néző
- Fűtés: Hőszivattyú
- Komfort: Dupla komfort
- Internet: Szélessávú (>10Mbps)
- Akadálymentesítés: Nem akadálymentesített

