Nyitólap Hirdetésfeladás Kapcsolat

Ingatlan hirdetések kizárólag ellenőrzött forrásból
Eladó Családi ház, Máriakálnok, Aranyossziget
#679700587
66.02 millió Ft
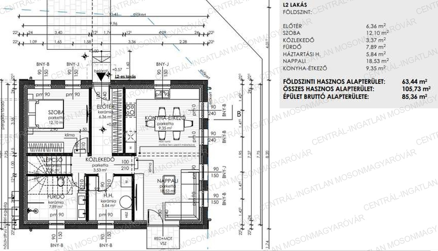
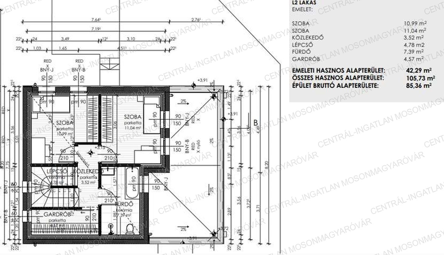
Alapterület 106 m2,  273 m2-es telken
Szobák száma 4 szoba
Építési mód Könnyűszerkezetes
Állapot Új építésű
Emelet nincs megadva

További paraméterek

  • Áron alul
  • CSOK igényelhető
  • Kertkapcsolatos
  • Otthon Start 3%-os hitellel
  • Zöldövezeti
  • Kilátás: Kertre néző
  • Fűtés: Hőszivattyú
  • Komfort: Dupla komfort
  • Internet: Szélessávú (>10Mbps)
  • Akadálymentesítés: Nem akadálymentesített

Részletes leírás

Kapcsolat

Bubla Zoltán

Irodavezető

Ossza meg a hirdetést:
FacebookGplusTwitter