Nyitólap Hirdetésfeladás Kapcsolat

Ingatlan hirdetések kizárólag ellenőrzött forrásból
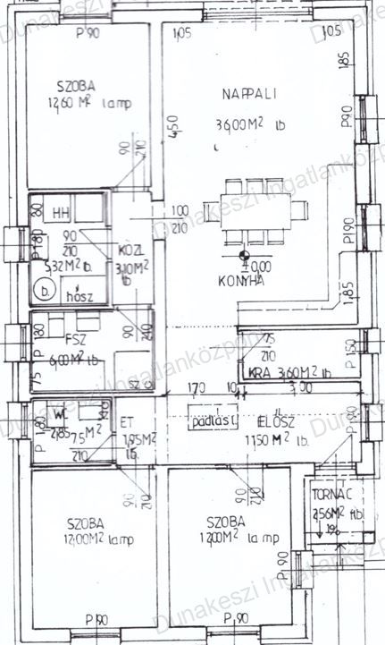
Eladó Családi ház, Göd
#132105212
144.9 millió Ft
Alapterület 115 m2,  890 m2-es telken
Szobák száma 4 szoba
Építési mód Tégla
Állapot nincs megadva
Emelet nincs megadva

További paraméterek

  • Internet: Szélessávú (>10Mbps)

Részletes leírás

Gödön a Nevelekben, csendes, már beépült, zöld környezetben, ÚJ ÉPÍTÉSŰ FÖLDSZINTES, takarékos önálló családi ház eladó!

 

Az ház elrendezése kiváló.

Az épület nagyon jó minőségben, magas műszaki tartalommal készül. 

 

A műszaki tartalomból: 

30-as PTH tégla+ 15 cm dryvitszigetelés.

Betonfödém.

Bramac sötétbarna tetőcserép.

Fehér, műanyag bejátrati ajtó, valamint ablakok háromrétegű üvegezéssel.

Elektromos műanyag redőnyök.

Térkövezett gk. beálló és gyalogos járda.

10 kw-os hőszívattyú padlófűtéssel,  valamint radiátor törölköző szárító.

 

Kérem forduljon hozzám bizalommal, és egyeztessünk megtekintési időpontot!

 

TEKINTSE MEG IRODÁNK TOVÁBBI KÍNÁLATÁT LOGÓNKRA KATTINTVA.

 

Kapcsolat

Lovack Tamás

Ossza meg a hirdetést:
FacebookGplusTwitter