|
139.9 millió Ft
|
|
| Alapterület | 117 m2, 545 m2-es telken |
| Szobák száma | 5 szoba |
| Építési mód | Tégla |
| Állapot | Új építésű |
| Emelet | nincs megadva |
További paraméterek
ÚJ AJÁNLAT
ÚJ ÉPÍTÉSŰ- Fűtés: Hőszivattyú
- Szintek száma: 1
- Komfort: Dupla komfort
Részletes leírás
Fót csendes, nyugodt részén épülő nappali + 4 szobás, duplakomfortos családi ház referenciákkal rendelkező, megbízható kivitelezőtől eladó!
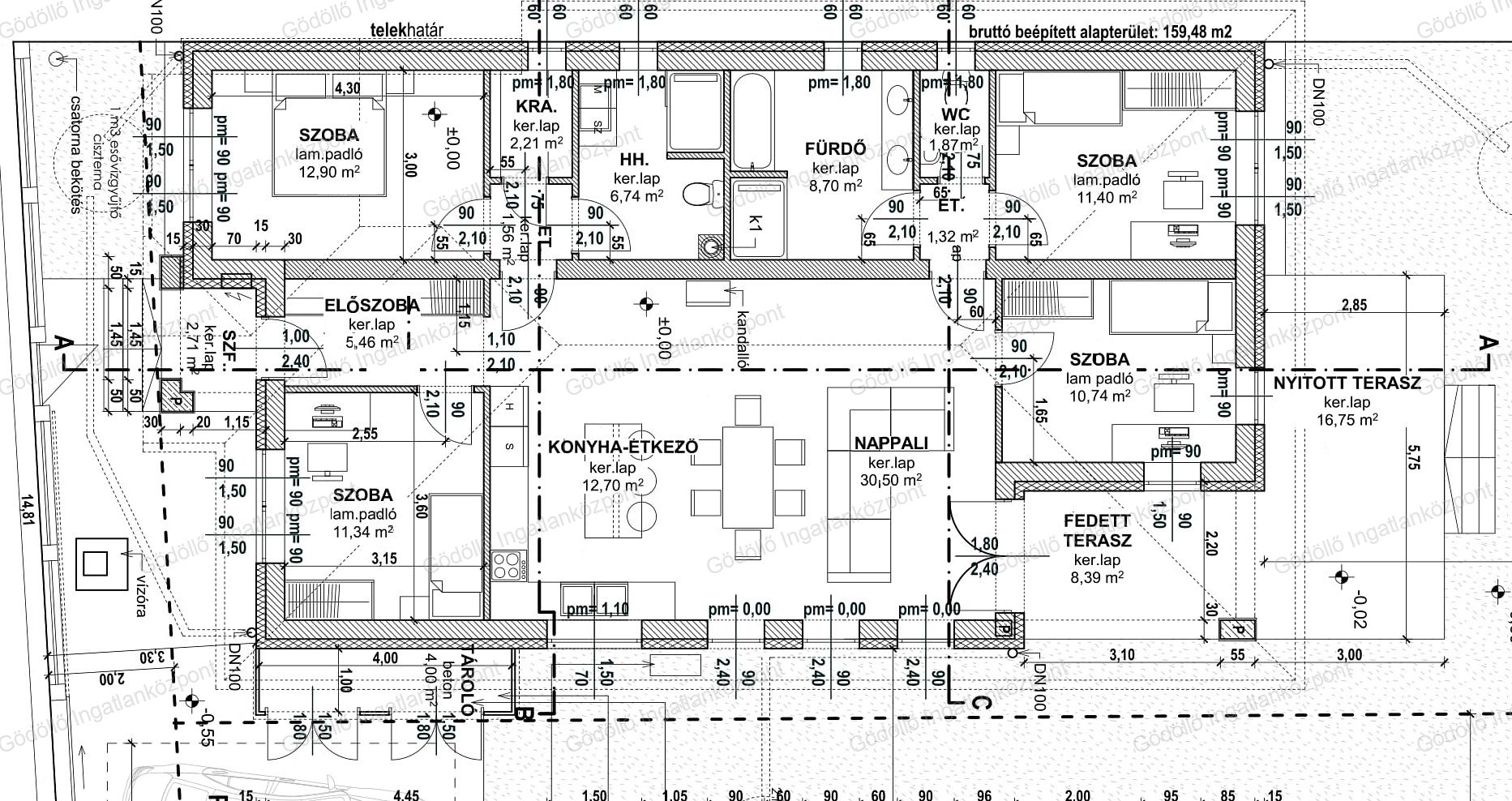
Műszaki adatok:
-30-as porotherm tégla falazat + 15cm homlokzati grafit dryvit szigetelés,
- E gerendás betonfödém,
- 3 réteg hőszigetelt üvegezésű, 5 légkamrás fehér műanyag nyílászárók,
- antracit színű beton cserépfedés,
- horganyzott acéllemez csatorna antracit színben,
- hőszivattyú padlófűtéssel, nappaliban kandalló,
- inverteres hűtő-fűtő klíma,
- hideg- melegburkolatok, szaniterek a vevő igényei szerint még szabadon választhatók!
Elosztás:
- Előszoba, nappali-konyha-étkező, 4 szoba, közlekedő, kádas fürdőszoba, zuhanyzós fürdő/háztartási helyiég, vendégmosdó + 4nm kültéri tároló, 8,39nm fedett és 16,75nm nyitott terasz.
Telek:
- 545nm telek, parkoláshoz kocsibeálló kerül kialakításra.
Környék:
Nagyon jó környék, közelben iskola, óvoda, orvosi rendelő, boltok, buszmegálló. M2, M3 autópálya 5-10 perc alatt elérhető.
Az ingatlan számos referenciával rendelkező, megbízható kivitelező építi!
Komoly érdeklődés esetén a referencia házak személyesen is megtekinthetők! Kérésre teljes műszaki tartalmat, alaprajzot szívesen küldünk!
Céges építkezés, új építésű ingatlanokra vonatkozó kedvezmények igénybe vehetők!
Irányár: 139,9Mft
Hivatkozási szám: 2518210.
Megtekinthető telefonos időpont egyeztetés alapján:
Sápi Balázs: +36 (20) 772-2429 [email protected]
GÖDÖLLŐ INGATLANKÖZPONT - www.godolloi.hu: Gödöllő és környéke legnagyobb ingatlan választéka /Gödöllő, Szada, Veresegyház, Kistarcsa, Kerepes, Erdőkertes, Fót, Dunakeszi/ eladó-kiadó családi ház, telek, lakás! Ingatlan építés és felújítás

