Eladó Családi ház, Dunaharaszti
#389385
|
114.8 millió Ft
|
|
| Alapterület | 273 m2, 500 m2-es telken |
| Szobák száma | 6 szoba |
| Építési mód | nincs megadva |
| Állapot | Felújítandó |
| Emelet | nincs megadva |
További paraméterek
- Kilátás: Kertre néző
- Komfort: Összkomfort
Részletes leírás
Több generáció együttélésére alkalmas ingatlan!
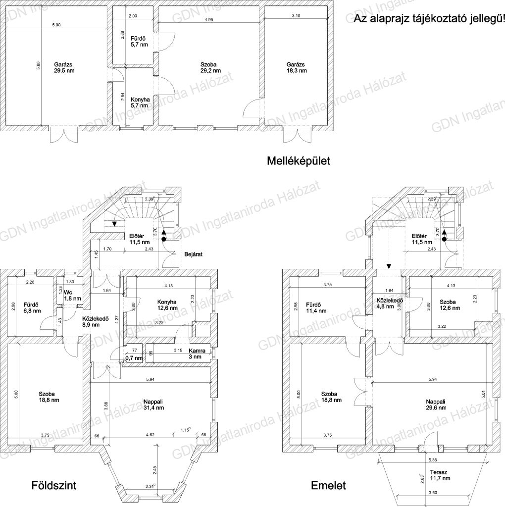
Dunaharaszti óvárosában kínálunk megvételre egy 1982-ben téglából épült, szigetelt, több generáció együttélésére alkalmas nettó 273 nm-es ingatlant, mely egy 184 nm-es kétszintes, önálló családi házból és egy 88 nm-es melléképületből áll, 682 nm-es telken.
A nagyház beosztása:
- Földszint-
- előtér 11,5 nm,
- közlekedő 8,9 nm,
- konyha 12,6 nm,
- fürdőszoba 6,8 nm,
- WC 1,8 nm,
- szoba 18,8 nm,
- szoba 31,4 nm,
- nappali 31,4 nm,
---------------------------
összesen: 95,5 nm.
- Emelet-
- előtér 11,5 nm,
- közlekedő 4,8 nm,
- szoba 12,6 nm,
- fürdőszoba +WC 11,4 nm,
- szoba 18,8 nm,
- nappali 29,6 nm,
---------------------------
összesen: 88,7 nm.
+ terasz: 11,7 nm.
- pincében ( 8 nm ) kazánház.
A melléképület 1978-ban téglából épült, egy 40,6 nm-es lakás és 2 db garázs lett kialakítva benne.
Az ingatlanban 5 db hűtő-fűtő klíma és egy épített cserépkályha biztosítja a fűtést, a melegvíz villanybojlerről megoldott.
Amivel segítjük az Ön ingatlanvásárlását:
- ingyenes hitelügyintézés,
- jogi háttér,
- földhivatali ügyintézés,
- energetikai tanúsítvány,
- a vevő számára az ingatlanközvetítés ingyenes.
Irodánk 30 éves szakmai tapasztalattal áll ügyfelei rendelkezésére!
Várom szíves megkeresését!

