|
24.9 millió Ft
|
|
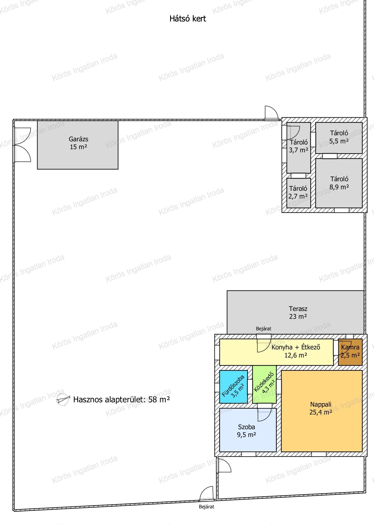
| Alapterület | 80 m2, 1 652 m2-es telken |
| Szobák száma | 2 szoba |
| Építési mód | Vályog |
| Állapot | Felújított |
| Emelet | nincs megadva |
További paraméterek
Jó közlekedéssel
Kertkapcsolatos
Otthon Start 3%-os hitellel
Sürgős
Zöldövezeti- Fűtés: Klímás hűtés-fűtés
- Bútorozottság: Részben bútorozott
- Komfort: Komfort
- Energetika: G
Részletes leírás
Békésszentandráson családi ház eladó!
Ritkaság a piacon! Békésszentandrás szélén eladó egy felújított, kis méretű, hangulatos, beköltözhető vályogház.
Tökéletes választás annak, aki csendre, nyugalomra és egy nagyobb telekre vágyik, minimális fenntartási költségek mellett. Nézze meg, beleszeret!
-Természetes építőanyag
- Felújított állapot
- Csendes, faluszéli elhelyezkedés
- Nagy telekméret, gazdálkodásra, önellátásra
- H-tarifás hűtés, fűtés
- Beépített, gépiesített konyha
- Nyílászárók cseréje
- Szigetelés
- Jó közlekedés
- Garázs
Vidéki életre vágyik, ahol a hagyomány találkozik a modern kényelemmel? Nem akar bajlódni a felújítással?
Akkor ez a hirdetés Önnek szól.
Előkertes családi ház, melynek felújításakor-helyiségek kialakításakor a hosszútávú lakhatást, kicsi rezsit, és élhető otthont álmodtak meg. A nyugati fekvésű fedett, hidegburkolattal ellátott terasz építését, az elviselhetetlen forró nyár indokolta. A gazdasági épület betonozott, értéket nem képvisel, viszont tárolóként nagyon hasznos egy kertes házban. A gépkocsinak lemeztároló biztosítja a helyet. Öntözésre fúrt kút áll rendelkezésre. Jelenleg a teleknek a 2/5-e hasznosított az építmények, udvar kialakításával, a többi terület bio, fűnyíróval kezelt füves rész.
Per, teher, igénymentes! 3%-os otthonteremtő hitelre (is) alkalmas!
Békésszentandrás területén van Magyarország 5. legnagyobb állóvize, a Hármas-Körös Kákafoki-holtága, ezért tartják sokan az Alföld legszebb fekvésű falujának. Közvetlen vízparti nyaralók, helyi sörfőzde, a Bordűr hotel, és számos országos hírű látnivaló, horgászati lehetőség teszi vonzóvá településünket. Békés megyében Szarvastól nyugatra helyezkedik el, a 44-es főút szeli ketté.
Az ingatlanról, a hirdetésekben szereplő információk a megbízótól kapott adatok alapján készítettük, irodánk azokért felelősséget nem vállal!

