|
49.5 millió Ft
|
|
| Alapterület | 44 m2 |
| Szobák száma | 2 szoba |
| Építési mód | Tégla |
| Állapot | Újszerű |
| Emelet | nincs megadva |
További paraméterek
CSOK igényelhető
Otthon Start 3%-os hitellel- Fűtés: Hőszivattyú
- Szintek száma: 1
- Komfort: Összkomfort
Részletes leírás
Nyíregyházán a KFC közelében 2024-ben épült, MÉG NEM LAKOTT, 1.emeleti lakás eladó!
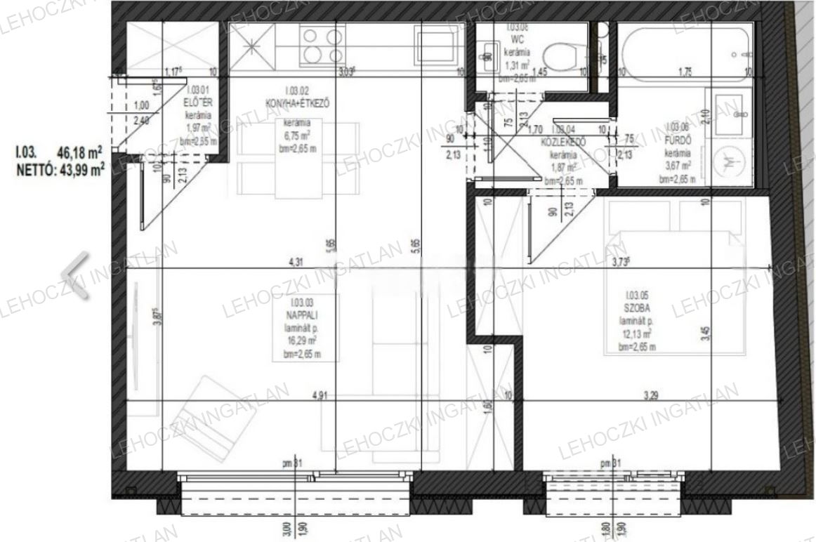
Nyíregyházán a KFC közelében, csendes, egyirányú utcában 2024-ben épült, MÉG NEM LAKOTT, 1.emeleti, 43.99 nm-es hasznos alapterületű, nappali - amerikai konyha + 1 szobás lakás AUTÓBEÁLLÓVAL eladó!
Az ingatlan főbb jellemzői:
tégla falazatú, 15 cm-es homlokzati szigeteléssel ellátva,
fokozottan hőszigetelt műanyag nyílászárók,
fűtése hőszivattyúval megoldott, minden helyiségben padlófűtéssel,
helységei: előtér, nappali-amerikai konyha, szoba, közlekedő, Fürdő, Wc külön helyiségben
szobákban laminált padló, többi helyiségben kerámia burkolat,
rövid határidővel költözhető
AZ AUTÓBEÁLLÓ ÁRA + 2.800.000,-Ft
Ideális választás lehet idősebbeknek, fiatal pároknak, családoknak.
A környék kiváló infrastruktúrával rendelkezik, közelben boltok, iskolák, óvodák, tömegközlekedési lehetőségek. Az ingatlan kiváló befektetésnek is minősülhet kiadási célra, tekintettel a frekventált elhelyezkedésre és az ingatlan jó adottságaira.
Díjmentes hitel, OTTHON START, Babaváró, Biztosítások ügyintézése!
Amennyiben hirdetésem felkeltette az érdeklődését keressen bizalommal! Ügyfeleink számára
minden szolgáltatásunk DÍJMENTES!
Tel:+36 30 579 6521
Lehoczki Mihály Ingatlanközvetítő

