|
58.9 millió Ft
|
|
| Alapterület | 60 m2, 220 m2-es telken |
| Szobák száma | 3 szoba |
| Építési mód | Tégla |
| Állapot | Új építésű |
| Emelet | nincs megadva |
További paraméterek
CSOK igényelhető
Jó közlekedéssel
Kertkapcsolatos
Zöldövezeti- Kilátás: Kertre néző
- Fűtés: Hőszivattyú
- Komfort: Összkomfort
- Internet: Optikai
Részletes leírás
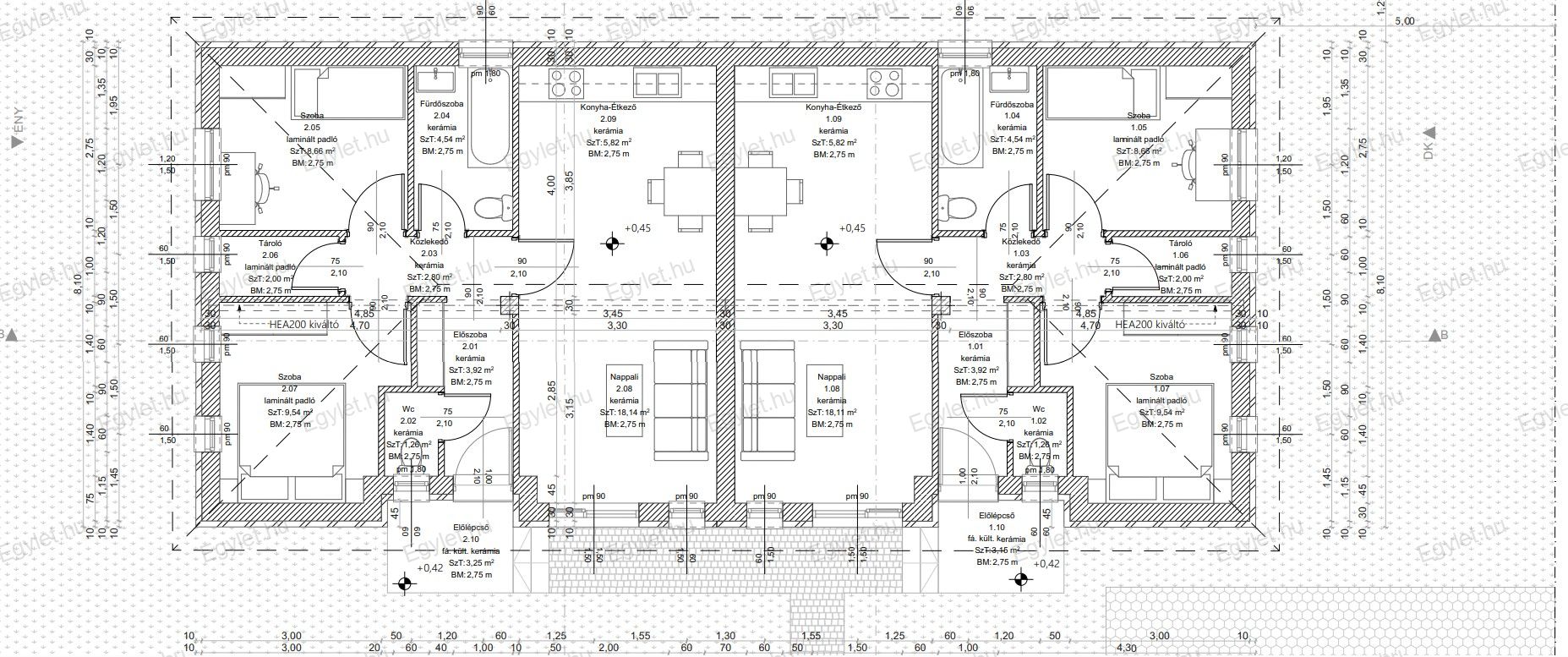
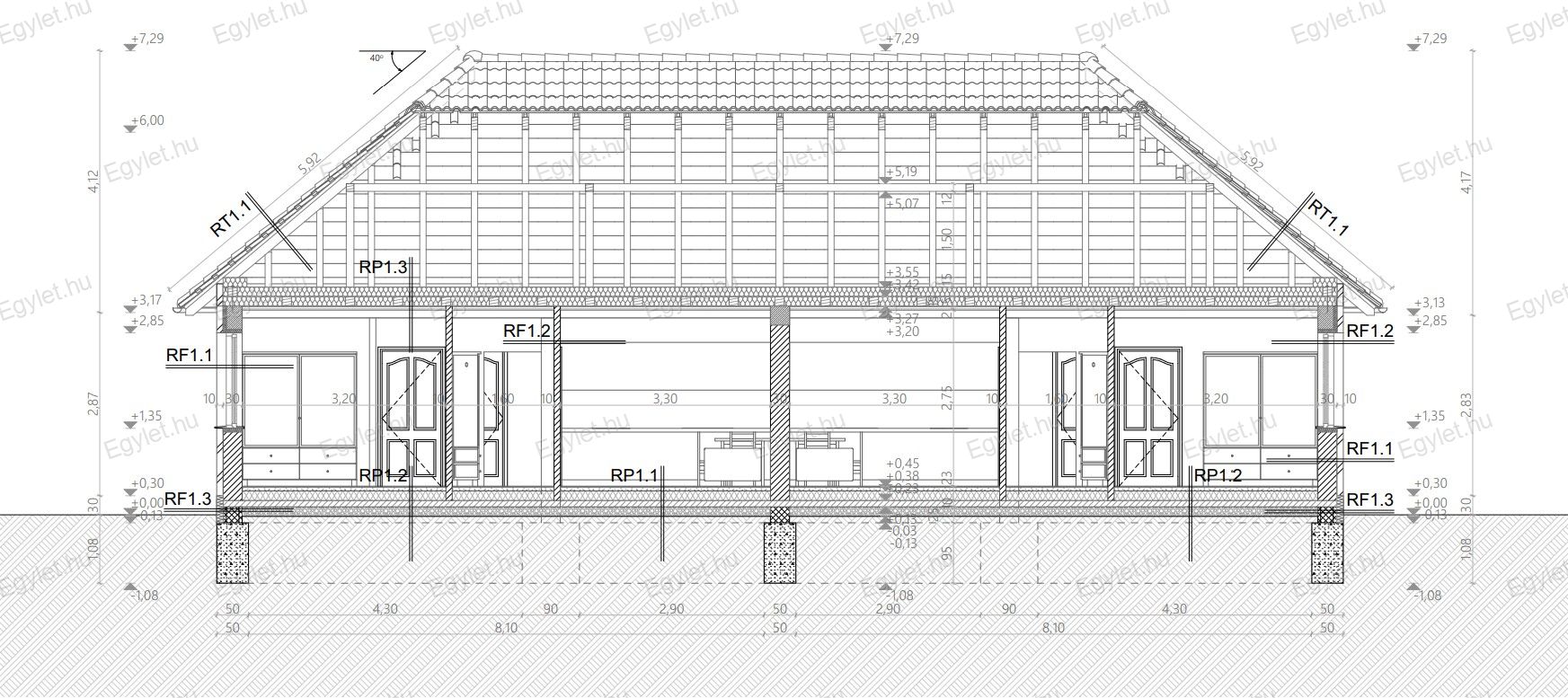
Megvételre kínálunk Monoron egy újépítésű, HÓSZIVATTYÚS, KLÍMÁS, teraszos, 66 nm-es, 3 szobás ikerházat.
Megvételre kínálunk Monoron egy újépítésű, HÓSZIVATTYÚS, KLÍMÁS, teraszos, 60 nm-es, 3 szobás ikerházat. Minőségi alapanyagokból, igényes kivitelezés jellemzi a projektet, ahol a biztonság és a kényelem mellett az energiatakarékosság volt a fő szempont. Az ingatlan fűtéséről, valamint a használati melegvíz ellátásáról egy modern, energia takarékos, innovatív levegő-víz hőszivattyú gondoskodik H tarifás üzemeltetéssel.
Ennek köszönhetően a rezsi költségek minimalizálódnak.
Az ingatlan hűtéséről egy klíma berendezés fog gondoskodni.
Ennél a beruházásnál most lehetősége van kompromisszumok nélkül egy olyan lakásba költözni, ahol Ön kiválaszthatja a hideg és meleg burkolatokat, szanitereket, valamint az egyéb kiegészítőket a családja legnagyobb megelégedésére, ez által személyre szabva álmai otthonát.
A kulcsra kész ár tartalmazza a redőnyöket, három rétegű nyílászárókat, riasztó előkészítést, kaputelefon és motoros kapu kiépítést. A gépjárművekkel az ingatlanhoz tartozó térkövezett beállón lehet biztonságosan parkolni.
Az ingatlanhoz 220 nm-es privát telek tartozik
Igénybe vehető lehetséges kedvezmények:
CSOK
5% Áfa visszatérítés
Babaváró hitel
Illeték kedvezmény vagy mentesség.
Helyiség lista:
- Előszoba
- Közlekedő
- WC
- Szoba
- Szoba
- Fürdőszoba
- Amerikai konyha,
- Étkező
- Nappali
- Tároló
- Terasz
A hirdetés referencia fotókat is tartalmaz.
Az ingatlan biztonságos, nyugodt, csendes, kertes házas övezetében, Monor egyik legszebb részén található. A környék fejlett infrastruktúrájának köszönhetően bővelkedik a szociális intézményekben, bölcsőde, óvoda, általános iskola, orvosi intézmények, bevásárlási lehetőségek, találhatóak a közelben.
Közlekedése kiváló, busszal a centrum vagy vonattal a Nyugati pu. rövid idő alatt megközelíthető. Az M4-es autópálya öt perc alatt elérhető.
Hitel, CSOK igénylésben díjmentes ügyintézéssel állunk rendelkezésére! Nálunk kiválaszthatja az Ön számára legkedvezőbb ajánlatot.
Várom megtisztelő érdeklődésüket.

